For Sale

New 4 Rooms Duplex Apartment Cotroceni

Mihail Cioranu, 3, bucuresti, Cotroceni, bucuresti

Actualizat din sursa: 14.12.2025 20:45

Pret solicitat

495,000 € + VAT

Agentie: Bucharestapartment.net

ID proprietate: 59438

New 4 Rooms Duplex Apartment Cotroceni - imagine 1
1 / 10

Descriere

Descoperiți un stil de viață urban rafinat într-una dintre cele mai prestigioase și căutate zone din București. Acest apartament duplex nou cu 4 camere, situat în apropierea zonei Cotroceni, oferă o combinație excepțională între funcționalitate și o locație de top. Proprietatea este ideală atât pentru o viață confortabilă de familie, cât și pentru o investiție pe termen lung.

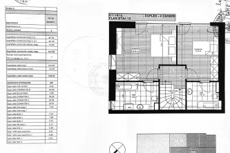
Amplasați într-o clădire recent finalizată, apartamentul beneficiază de standarde moderne de construcție, materiale de înaltă calitate și planuri eficiente. Conceptul arhitectural pune accent pe linii curate, lumină naturală și spații de locuit bine definite, creând o atmosferă elegantă și primitoare. Layout-ul duplex oferă o separare clară între zonele de zi și cele private, sporind confortul și intimitatea. La nivelul inferior se află spațiile de locuit principale, incluzând un living generos conectat fără întreruperi la zona de dining și bucătărie, ideal pentru a primi oaspeți sau pentru seri relaxante acasă.

Unul dintre cele mai remarcabile aspecte ale acestei proprietăți este bucătăria mare cu balcon deschis, un atu rar și foarte dorit în această zonă. Balconul oferă suficient spațiu pentru mobilă de exterior, plante sau o zonă de relaxare, extinzând spațiul de locuit în aer liber și oferind un cadru ideal pentru cafeaua de dimineață sau întâlniri sociale. La nivelul superior se află dormitoarele spațioase, fiecare beneficiind de proporții eficiente și o atmosferă calmă, făcând apartamentul potrivit pentru familii, profesioniști sau cumpărători care caută o reședință de prestigiu în oraș. Inclusiv un loc de parcare subteran echipat cu sistem Klaus asigură un parcaj sigur și convenabil, adăugând o valoare semnificativă, mai ales într-o locație centrală unde disponibilitatea parcării este limitată.

Istoric disponibilitate

Oct
Noi
Dec
Ian
Feb
Mar

Din aceeasi agentie

Portofoliu Bucharestapartment.net

Alerte disponibile

Anunta-ma la modificari

Primeste notificari cand proprietatea "New 4 Rooms Duplex Apartment Cotroceni" se actualizeaza.

PUSH

Pentru a primi alerte, permite notificari si accepta abonarea.

Date esentiale

Suprafata

140 mp

Camere

4

Dormitoare

3

Bai

4

Tip proprietate

Apartment

Zona

Cotroceni

Oras

bucuresti

Status listare

for_sale

Cod anunt

59438

Ultima actualizare

14.12.2025 20:45

Agent dedicat

Alexander Davidov

Agentie: Bucharestapartment.net

Suna agentul

Locatie

Pozitionare pe harta

live

Coordonate: 44.42440, 26.07002

Portofoliu agentie

Vezi toate proprietatile Bucharestapartment.net

Vezi portofoliul complet

Puncte de interes

In raza de 50 - 200 m

200 m
50 m 200 m
Se incarca punctele de interes...

Descopera

Alte proprietati in zona

Selectie bazata pe o raza de 12 km

Pareri si feedback

Spune-ne ce crezi despre aceasta proprietate

Comentarii

Alatura-te discutiei

Ai un gand sau o intrebare? Lasa un comentariu mai jos.

0 comentarii
Autentificarea este necesara pentru voturi.
Nu exista comentarii inca. Fii primul care lasa un gand.